پرسپولیس یکی از عجایب دنیای باستان
پرسپولیس یا همان تخت جمشید یکی از آثار باستانی ایران برجای مانده از ۲۵۰۰ سال پیش و دوران هخامنشیان است که در شیراز قرار دارد و به علت معماری شگفت انگیز آن به ثبت یونسکو هم رسیده است.
به گزارش سرویس وبگردی خبرگزاری صدا و سیما، شیراز شهری با قدمت تاریخی است در اطراف این شهر، آثار و بناهای باشکوه تاریخی بسیاری مشاهده میشود. یکی از این بناهای عظیم تخت جمشید پرسپولیس (Persepolis) است.
سالانه تعداد زیادی از گردشگران ایرانی و خارجی برای بازدید از تخت جمشید و شگفتیهای آن در بهترین هتلهای شیراز اقامت میکنند. در مطلب پیش رو میخواهیم بخشهای مختلف تخت جمشید و بناهای تاریخی اطراف آن را به شما معرفی کنیم تا هنگام بازدید از این بنای تاریخی اطلاعاتی مختصر از تاریخچه هر کدام از آنها داشته باشید.
پرسپولیس یکی از شاهکارهای معماری و به عبارتی از عجایب دنیای باستان به شمار میرود. بنای تاریخی این مکان در تمام جهان شناخته شده و به ثبت یونسکو رسیده است. حتی قسمتی از کتیبه ها، ستونها و آثار باستانی آن در موزه کشورهای خارجی نگهداری میشود.
نگاهی بر بزرگترین قدرت ۲۵۰۰ سال پیش (تاریخچه تخت جمشید)
تاریخچه تخت جمشید یا پرسپولیس
تخت جمشید یکی از مهمترین و باشکوهترین آثار تاریخی ایران و جهان به شمار میرود. ساخت این مکان تاریخی و دیدنی ۱۸۸ سال به طول انجامیده است. تکمیل بنای تخت جمشید تا دوران فرمانروایی داریوش بزرگ، خشایارشاه و اردشیر اول ادامه داشته است.
قدمت تخت جمشید
در پاسخ به این سوال که تخت جمشید چند سال قدمت دارد میتوان گفت، قدمت تخت جمشید به ۲۵۰۰ سال پیش برمی گردد.
این بنای باشکوه، شاهد و میزبان جشنهای بسیاری در طول تاریخ بوده است که به دست اسکندر مقدونی به آتش کشیده شد و امروزه قسمتهای محدودی از آن به جا مانده است.
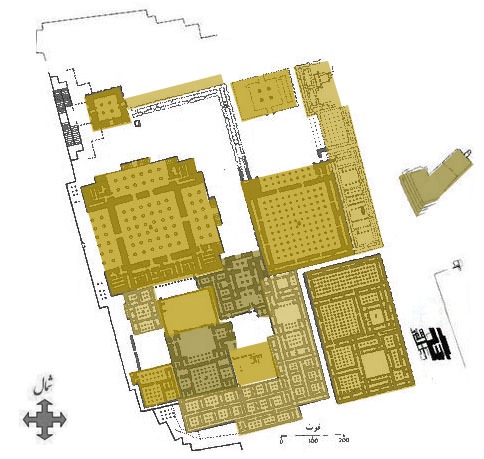
تخت جمشید یا پرسپولیس از قسمتهای مختلفی مانند تالار، نقش برجسته، ستون، آرامگاه سنگی و پلکان تشکیل شده که از یک سمت، روی کوه رحمت و از سه طرف دیگر، درون جلگه مرودشت بنا شده است.
بخشهای مختلف تخت جمشید
تخت جمشید مجموعهای عظیم و تاریخی است که در دل خود، دهها کاخ باشکوه در شهر شیراز قرار دارد. تخت جمشید یکی از مهمترین دیدنیهای شیراز، ایران و جهان میباشد. هرکدام از این کاخها اقتدار و قدرتمندی امپراتوری آن زمان را نشان میدهند. در ادامه، به معرفی این کاخها میپردازیم.
۱. کاخ آپادانا، قدیمیترین کاخ تخت جمشید
کاخ آپادانا تخت جمشید شیراز
آپادانا از قدیمیترین کاخهایی است که به دستور داریوش بزرگ در تخت جمشید ساخته شده است. این کاخ مربع شکل، دارای ۷۲ ستون به طول بیش از ۲۰ متر میباشد.
۲. کاخ ملکه، موزه تخت جمشید
این کاخ، به دستور خشایار شاه، در ارتفاعی پایینتر از سایر بناها ساخته شده است.
کاخ ملکه تخت جمشید به دلیل خاکبرداری و تجدید بنا به عنوان موزه و اداره مرکزی تاسیسات تخت جمشید مورد استفاده قرار میگیرد. این بازسازی و تغییر بنا توسط پروفسور ارنست امیل هرتزفلد در سال ۱۹۳۱ انجام شد.
۳. کاخ تچر، تالار باشکوه آیینه
یکی از زیباترین کاخهای تخت جمشید کاخ تچر است. این مکان، کاخ اختصاصی داریوش کبیر به نام خانه زمستانی است. کاخ تچر ۱۲ ستون دارد. هر ستون با نقش برجستههایی تزیین شده است. امروزه به این کاخ تالار آیینه میگویند. دلیل این نامگذاری به کار رفتن سنگهایی صیقل یافته و همچون آیینه در ساخت بنای آن میباشد.
۴. کاخ هدیش، کاخ پر رمز و راز تخت جمشید
کاخ هدیش کاخ خصوصی خشایارشاه بوده است. نام این کاخ از نام همسر دوم خشایارشاه گرفته شده است. کاخ هدیش در مرتفعترین بخش تخت جمشید واقع است. متاسفانه قسمتهای کاخ هدیش تخت جمشید سالم نیست و به دلیل ویرانی شدید اطلاعات کمی از این کاخ وجود دارد. به همین دلیل، به آن کاخ مرموز نیز میگویند.
۵. کاخ صد ستون، تالار تخت
یکی دیگر از کاخهای تخت جمشید کاخ صد ستون است. این کاخ در حدود ۴۶۰۰۰ متر مربع وسعت داشته است. سقف آن به وسیله صد ستون بر پا بوده است. هرکدام از ستونها دارای ارتفاعی در حدود ۱۴ متر بوده اند.

۶. کاخ سه در، تالار شورا
این کاخ در مرکز کوشک شاهی تخت جمشید شیراز قرار دارد. علت نامگذاری این کاخ با عنوان کاخ «سه در» یا «مرکزی» این است که از طریق سه درگاه و چند راهرو به کاخهای دیگر راه دارد. احتمالاً شاه در این کاخ با بزرگان به بحث و مشورت میپرداخته است. با توجه به نقوش حجاری شده، شاه از یکی از دروازهها وارد و از دو دروازه دیگر خارج میشده است. دو سرستون انسان در این کاخ به چشم میخورد. سر انسان نشانه تفکر است.
۷. کاخ ه، متفاوتترین کاخ تخت جمشید از نظر سنگ تراشی
کاخ ه پرسپولیس
این کاخ با نام عجیبی که دارد در غرب کاخ هدیش قرار گرفته است. پلکان منقوش دو طرف این کاخ امروزه حالتی نیمه ویران دارد.
۸. کاخ ج، کاخ کشف نشده تخت جمشید
کاخ ج
تپهای کوچک و خالی در غرب تالار شورا وجود دارد. طی حفاریهای متعدد در این قسمت، چیزی غیر از قطعهای از پلکان سنگی با نقش برجسته کشف نشده است. به نظر نمیرسد این مکان بدون کاربری بوده باشد. به احتمال زیاد محل قرارگیری یکی دیگر از کاخهای تخت جمشید بوده که به طور کامل تخریب شده است. این بخش از این مکان تاریخ همچنان به صورت یک راز باقی مانده است.
۹. دروازه ملل، باشکوهترین دروازه تخت جمشید
پلکان ورودی اصلی تخت جمشید دارای ۱۱۱ پله است. پس از آن به دروازه باشکوه ملل یا دروازه خشایارشاه میرسد. در وسط تالار، ۴ ستون به ارتفاع بیش از ۱۶.۵ متر به چشم میخورد. در بالای پلکان اصلی، کتیبهای به سه زبان پارسی باستان، عیلامی و بابلی نگاشته شده است. در درگاه غربی، دو گاو بسیار بزرگ و در درگاه شرقی دو گاو عظیم الجثه بالدار با سر انسان وجود دارد.
تخت جمشید کجاست؟
اغلب مردم فکر میکنند آدرس تخت جمشید در شهر شیراز است و دقیقا نمیدانند تخت جمشید در کدام شهر است؟ این مجموعه دیدنی و تاریخی در استان فارس، حوزه شهرستان مرودشت و در ۵۷ کیلومتری شمال شیراز قرار دارد.
مسیر دسترسی به تخت جمشید
برای اینکه خودتان را به تخت جمشید شیراز برسانید پیشنهاد میکنیم با توجه به موقعیت جغرافیایی تخت جمشید و قرارگیری این مکان گردشگری در ۵۷ کیلومتری شیراز، ابتدای روز به سمت تخت جمشید حرکت کنید. شما میتوانید با وسیله شخصی خود به استان فارس ۵۷ کیلومتری شیراز بروید، پس از رسیدن به مرودشت از قسمت شمال شهر مسیر ۷ کیلومتری خیابان پرسپولیس را بپیمایید تا به مجموعه تخت جمشید برسید. این بنا در فاصله ۴۰ کیلومتری شیراز به اصفهان قرار دارد.
همچنین، برای رفتن به تخت جمشید با وسایل نقلیه عمومی میتوانید به ترمینال شیراز بروید و در آنجا با اتوبوس یا تاکسیهای منتهی به مرودشت خودتان را به تخت جمشید برسانید. این مسیر چیزی در حدود ۴۵ دقیقه زمان میبرد؛ بهتر است زمانبندی و برنامه ریزی لازم برای بازدید از تخت جمشید و مکانهای گردشگری اطراف آن را از قبل انجام دهید و از سفر خود لذت ببرید
ساعت کاری تخت جمشید همه روزه از ساعت ۸ صبح تا ۱۷:۳۰ میباشد.
حرف آخر
تخت جمشید شیراز بزرگترین بنای سنگی جهان محسوب میشود. این مجموعه شامل کاخهای متفاوتی است. از تخت جمشید لوحهای خشتی و گلی زیادی یافت شده که هر کدام حاوی مطلب یا قانون خاصی میباشند. ساخت مقاوم این بناها در برابر عوامل طبیعی از شگفتیهای مجموعه عظیم تخت جمشید به شمار میرود. شما میتوانید با مشاهده عکس تخت جمشید قدیم، قدرت و هنر ایرانیان در ادوار گذشته را ببینید!
پس از گذشت سالهای بسیار و آتش سوزی عظیم، همچنان قسمتهایی از تخت جمشید سالم مانده است. مهارت بسیار زیاد سنگ تراشان و مهندسان آن زمان در ساخت تخت جمشید و مجسمههای به کار رفته در آن که در عکس تخت جمشید سالم دیده میشود، خبر از عظمت و اقتدار پادشاهان هخامنشی میدهد. باستان شناسان هنوز موفق به کشف شهر پارسه نشده اند که به گفته خودشان همچنان درون زمین پنهان است.
منبع: هتل یار